VEREIN HISTORISCHE FAHRZEUGE CALBE (SAALE) E.V. – HAUS 9
Kuhgasse, 39240 Calbe (Saale)
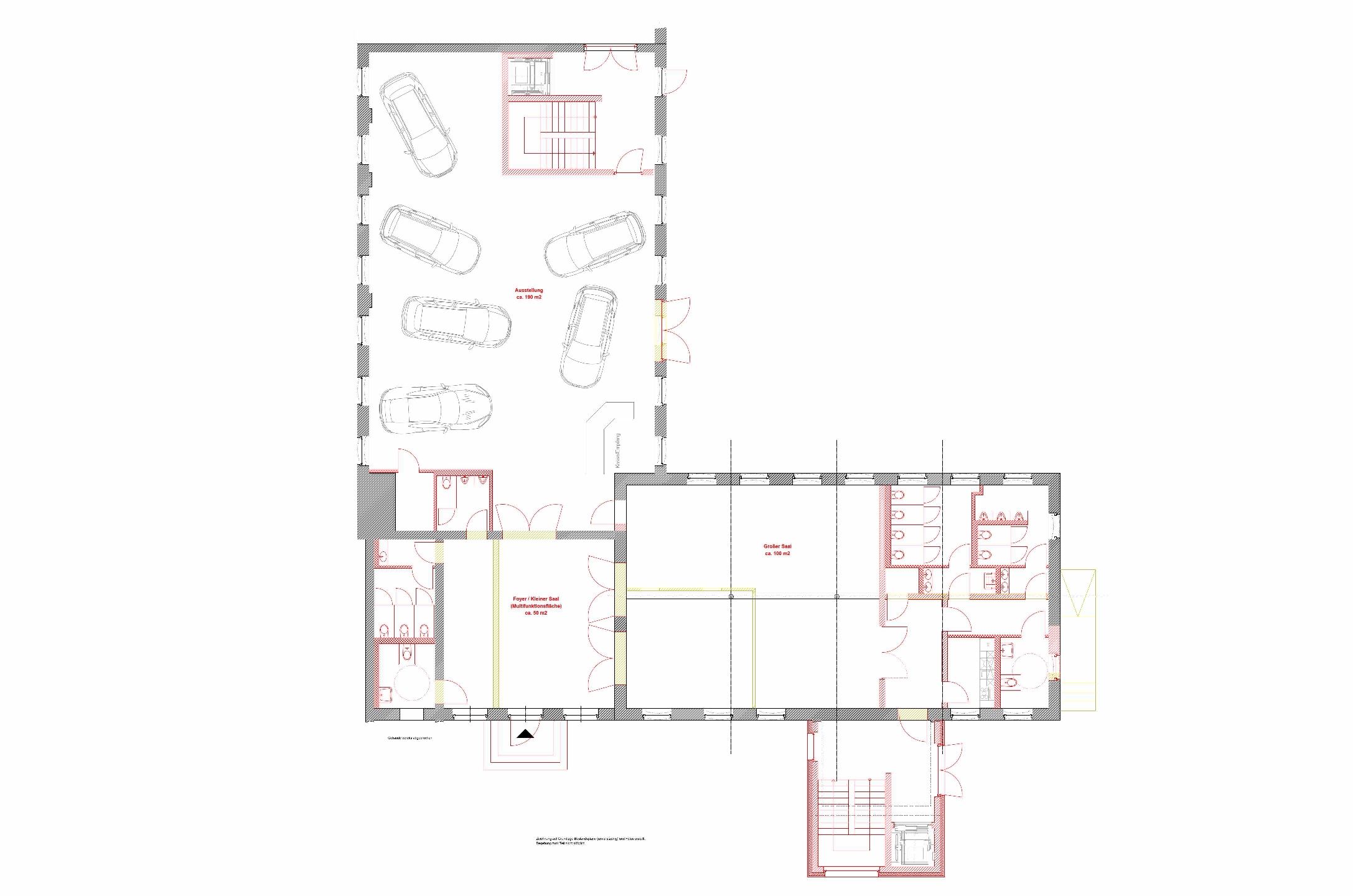
Objektbeschreibung:
Konzepterstellung für die Aufstellung von historischen Fahrzeugen in den alten Industriegebäuden
Leistungen:
Entwurf mit Kostenschätzung
Leistungszeitraum: 11/2019
Konzepterstellung für die Aufstellung von historischen Fahrzeugen in den alten Industriegebäuden
Leistungen:
Entwurf mit Kostenschätzung
Leistungszeitraum: 11/2019