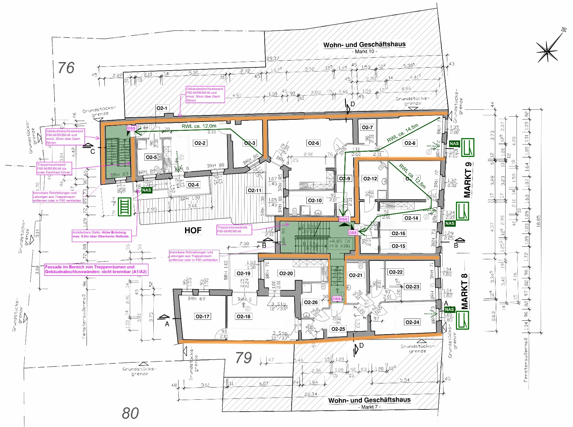
BRANDSCHUTZKONZEPT WOHN- UND GESCHÄFTSHAUS
Markt 8/9, 06406 Bernburg (Saale)
Objektbeschreibung:
Umbau und Sanierung eines Mehrfamilienhauses in Bernburg
Leistungen:
Erstellung Brandschutzkonzept
Leistungszeitraum: 03/2020 – 04/2020
Umbau und Sanierung eines Mehrfamilienhauses in Bernburg
Leistungen:
Erstellung Brandschutzkonzept
Leistungszeitraum: 03/2020 – 04/2020