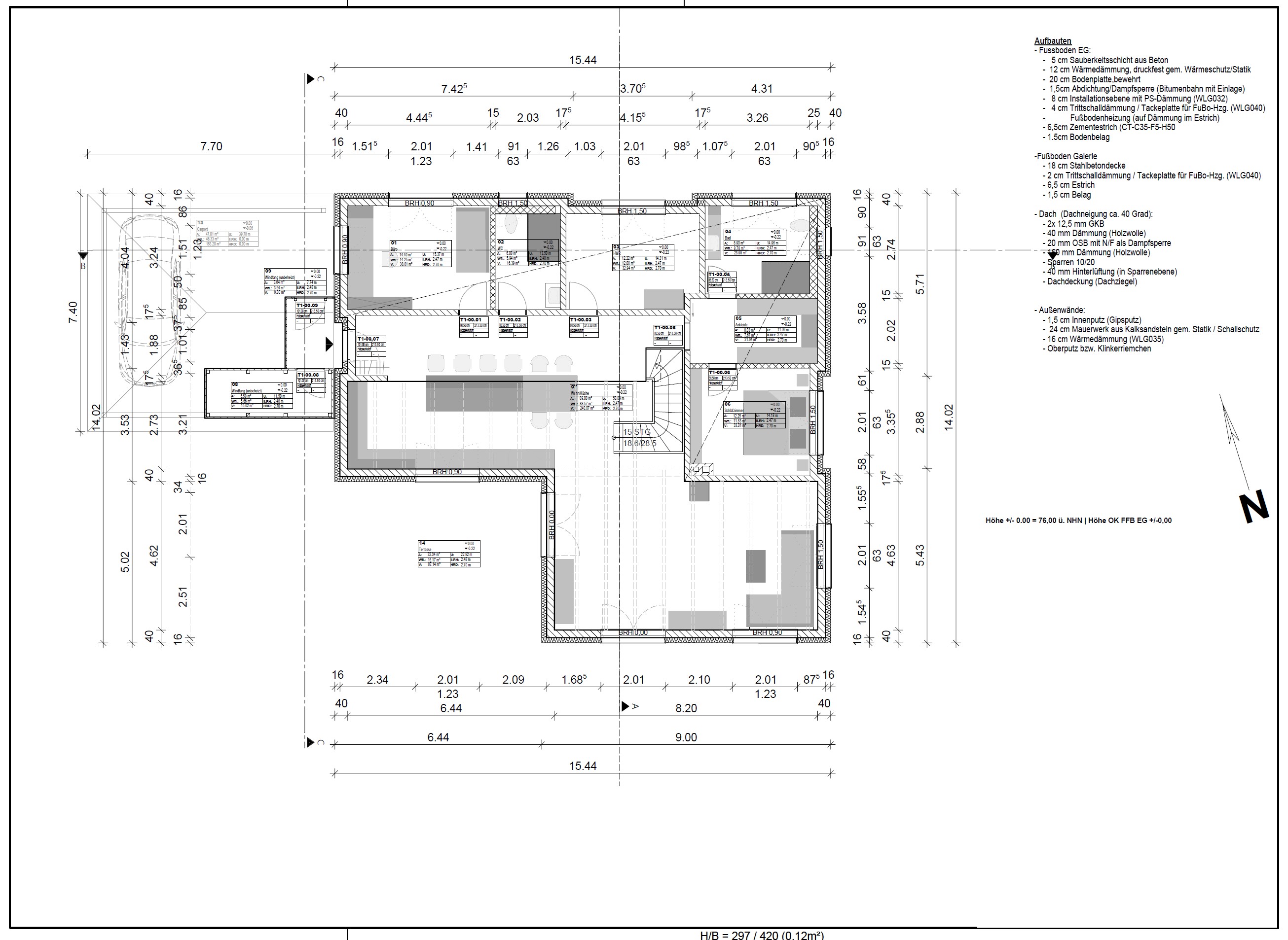
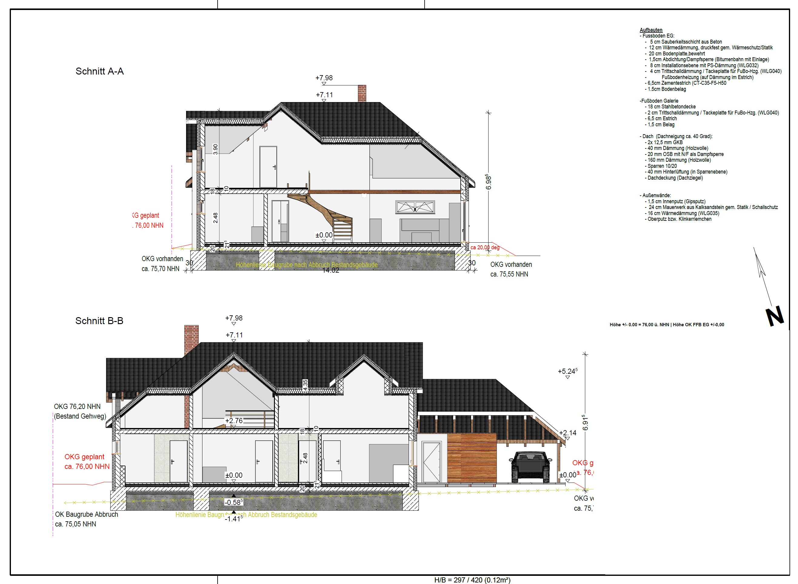
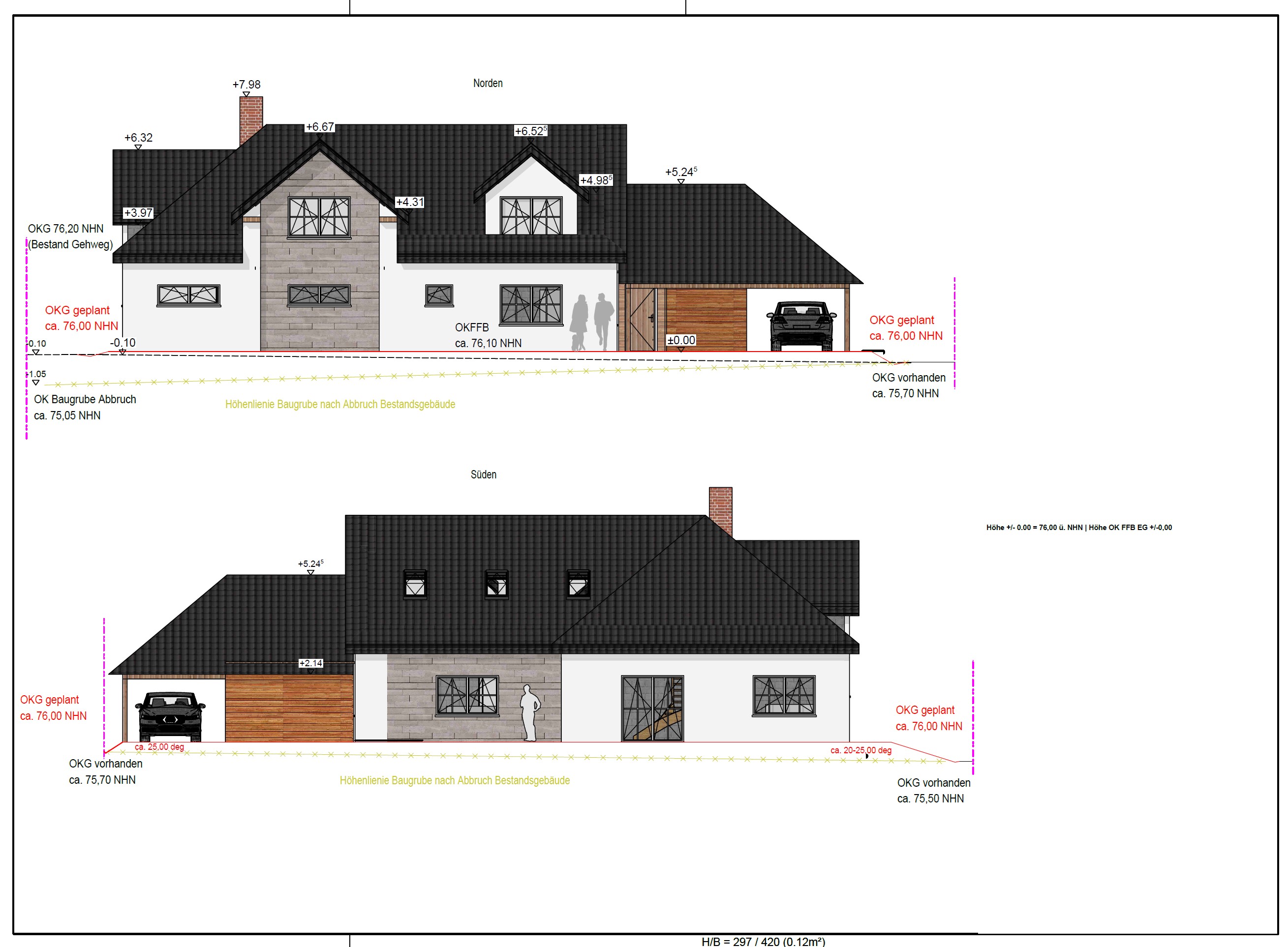
Raumkonzept mit Galerie: Planung eines Einfamilienhauses
Magdeburg
Objektbeschreibung:
Entwurf eines Einfamilienhauses mit einer Galerie als 2. Obergeschoss als lichtdurchflutete Eleganz.
Leistungen:
Entwurfsplanung, Genehmigungsplanung
Leistungszeitraum: 05/2023 - 05/2024
Entwurf eines Einfamilienhauses mit einer Galerie als 2. Obergeschoss als lichtdurchflutete Eleganz.
Leistungen:
Entwurfsplanung, Genehmigungsplanung
Leistungszeitraum: 05/2023 - 05/2024