EINFAMILIENHAUS IM AMERIKANISCHEN STIL
Schwanstraße, 39116 Magdeburg
Objektbeschreibung:
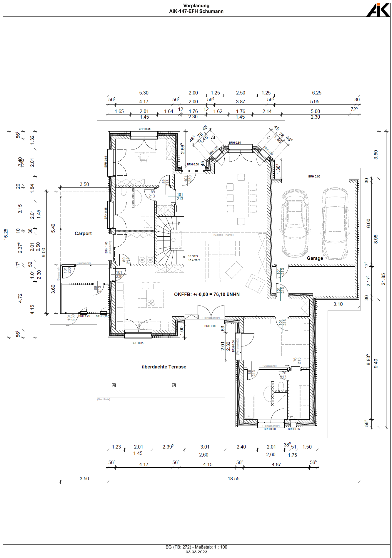
Entwurf eines Einfamilienhauses im amerikanischen Stil. Verwinkeltes Haus mit Gauben und einer Garage.
Leistungen:
Entwurfsplanung
Leistungszeitraum: 05/2022 - 05/2023
Entwurf eines Einfamilienhauses im amerikanischen Stil. Verwinkeltes Haus mit Gauben und einer Garage.
Leistungen:
Entwurfsplanung
Leistungszeitraum: 05/2022 - 05/2023