AUSBAU DACHGESCHOSS/INSTANDSETZUNG FASSADE
Randauer Dorfstraße, 39114 Magdeburg
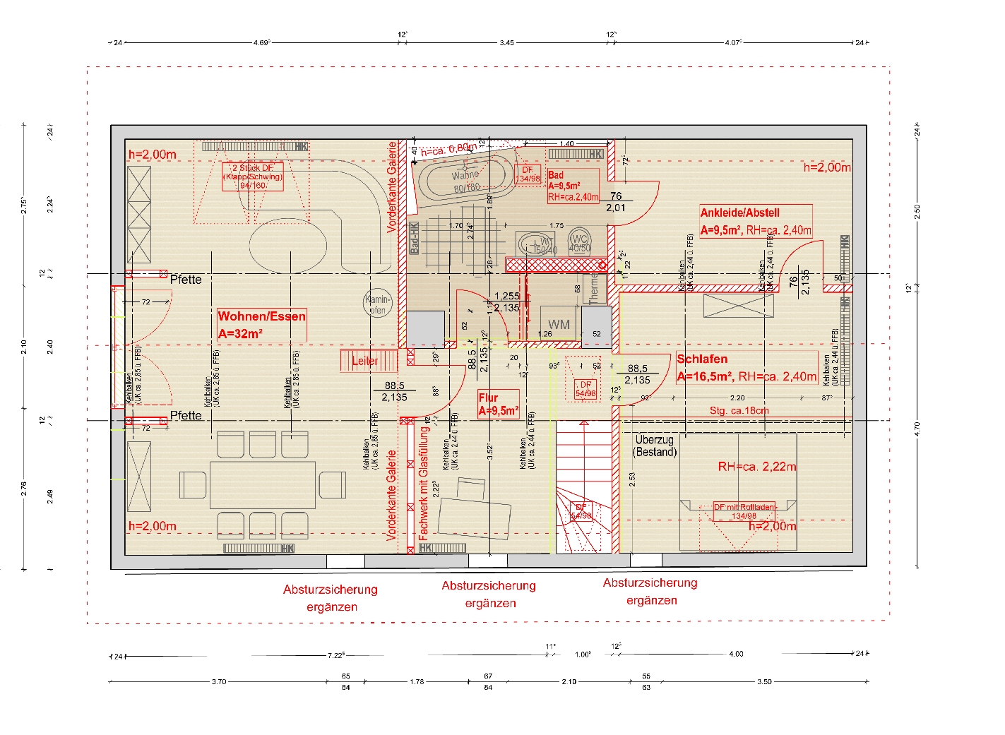
Objektbeschreibung:
Ausbau des Dachgeschosses eines historischen Bauernhauses sowie Instandsetzung Fassade
Leistungen:
Unterstützung Entwurfsplanung
Unterstützung Objektüberwachung/Koordination
Leistungszeitraum: 07/2020 – 12/2020
Ausbau des Dachgeschosses eines historischen Bauernhauses sowie Instandsetzung Fassade
Leistungen:
Unterstützung Entwurfsplanung
Unterstützung Objektüberwachung/Koordination
Leistungszeitraum: 07/2020 – 12/2020